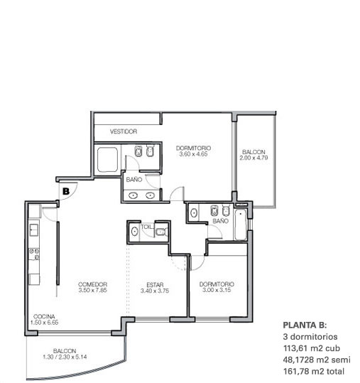
Haga click sobre una unidad para agrandarla